JAYSINIA D101 : Appartement NEUF 3 chambres DUPLEX à vendre Samoens

Prix : 575000€

Ville : Samoens
Référence : AS965

Bien soumis au régime de la copropriété

Du 2 pièces au 5 pièces :

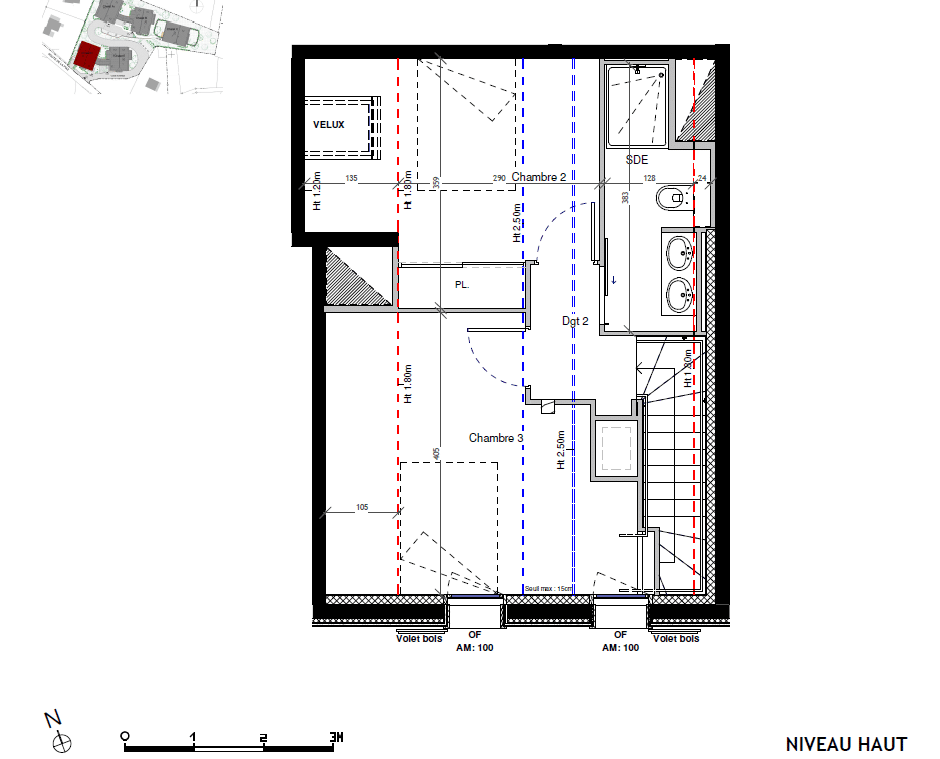
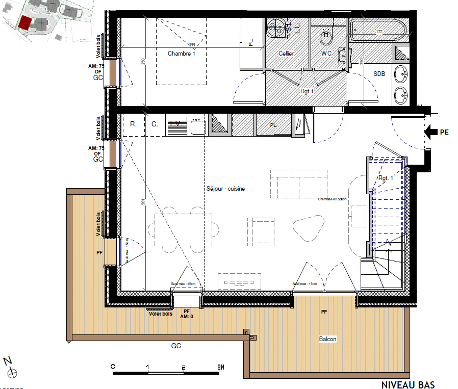
le D101 offre 3 grandes chambres , salle d’eau et salle de bain , et un grand séjour avec terrasse exposée SUD et OUEST .  2 Places de Parking  en sous sol .

Cette jolie résidence neuve bien conçue , prend le contre -pied des autres  : elle n’est pas plein centre , et du coup élève le point de vue de chaque appartement , qui tous bénéficieront de calme , de vue , de lumière et d’un environnement de qualité.

Livraison ETE 2028.

La résidence Les Chalets de Jaysinia est un programme intimiste composé de 5 chalets abritant 17 appartements.

L’architecture s’inspire du style montagnard avec des façades mêlant bois, pierre et enduits, parfaitement intégrées à l’environnement alpin. Les appartements bénéficient de balcons, terrasses ou jardins privatifs permettant de profiter pleinement du cadre naturel.

Les logements offrent des prestations de qualité : carrelage grand format dans les pièces de vie, parquet dans les chambres, menuiseries bois double vitrage, cuisines équipées selon typologie et salles de bains aménagées. Chaque appartement est conçu pour un confort optimal avec chauffage au sol basse température, chaudière individuelle gaz à condensation, ventilation hygroréglable et raccordement à la fibre optique.

La résidence dispose également de stationnements en sous-sol et extérieurs, ainsi que d’espaces dédiés aux vélos. Conforme à la réglementation environnementale RE2020, elle garantit confort thermique, performance énergétique et qualité acoustique.

Lire plus

Général

Référence : AS965
Année de construction : 2028
Etat : NEUF
Exposition : Sud/Ouest
Vue : Montagnes
Nombre de pièces : 4
Nombre de Chambres : 3
Nombre de Salle de Bains : 1
Nombre de Salle d’eau :1
Parking : 2

Finance

Prix : 575000€

Surfaces

Surface de plancher : 92.51
Surface loi Carrez : 83.85

Divers

Co-Propriété
Numéro étage : R+2
Nombre de lots : 17

Diagnostics/Alur

Diagnostic de performance énergétique

Facture d’énergie estimée

Retour en haut

Nos honoraires

Biens inférieurs à 100 000 € : Forfait de 5 000 € TTC
Appartement, chalet, maison, terrain, local commercial entre 100 000 et 500 000 € mandat simple : 5,5% TTC
Appartement, chalet, maison, terrain, local commercial entre 100 000 et 500 000 € mandat exclusif  : 4,5% TTC
Appartement, chalet, maison, terrain, local commercial supérieur à 500 000 € mandat simple : 5% TTC
Appartement, chalet, maison, terrain, local commercial supérieur à 500 000 € mandat exclusif  : 4,5% TTC
Garage, chalet d’alpage mandat simple : 5,5% TTC
Garage, chalet d’alpage mandat exclusif : Sans
VEFA 5% TTC
En cas de mandat de substitution : La rémunération est celle du mandat principal
Mandat de recherche 5,5% TTC

Honoraires de transaction, à la charge du vendeur.

JAYSINIA D101 : Appartement NEUF 3 chambres DUPLEX à vendre Samoens
  • Ce champ n’est utilisé qu’à des fins de validation et devrait rester inchangé.

Nouvelle adresse

L’agence emménage au : 
98 place du gros tilleul
BP 4 – F 74340 SAMOENS